The Adventure Begins!

New Kitchen for 6 Silver Spring

Prologue

Week 1 (July 16-22)

Week 2 (July 23-29)

8/04/12 - Mayhem at 6 Silver Spring!

Week 4 (August 6-12)

Tuesday 8/14 - The electricians arrive for the first time.

Week 5 (August 14-19)

Week 6 (August 20-26)

Week 7 (August 27-31)

Week 8 (September 1-8)

Week 9 (September 9-14)

Week 10 (September 15-22)

Week 11 (September 23-30)

Week 12 (October 1-7)

Week 13 (October 8-14)

Week 14 (October 15-21)

Week 15 (October 22-29)

Week 16 (October 30 - Nov 4)

Week 17 (November 5-11)

Week 18 (November 12-18)

Weeks 19 & 20 (November 19-30)

Week 21 (December 1-7)

Weeks 22 & 23 (December 8-21)

Epilog

 

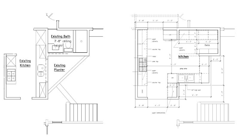
What we started with (D)

I am amazed at the ability of the human mind to surpress memories of pain. Will and I remodeled extensively in South Pasadena. I'm sure it was stressful, trying to cook meals and maintain routines for the kids in the midst of the dust and upheaval that accompanies remodeling. But I have no memory of that... I only remember the fun stuff: Ian (8) sitting on the roof, singing along with the carpenter. Katy (10) donning Will's tool belt, and trying to brandish a cordless drill - but she was so small she required two hands just to pick it up. And Ian happily scrabbling through the crawlspace, helping Will and the electrician to run wires - and he was genuinely useful. It was summer, and the kids begged to stay home everytime Will was there, because to them it was a wonderful adventure! My children have taught me many things, and I'm going to try to learn from them once again: I will try to approach this as an adventure!

Here's the problem:

Tiny galley kitchen - Will and I step on each other while cooking. And barely room for a spoon alongside the stove, let alone anything else...

In the family room, this weird "atrium" (rocks on left) opens up through the master bedroom. This is the space we're adding to the kitchen. The family room also has another odd feature - carpet inserted in the tile, like a rug.

And there's a bathroom that no one uses, mostly because it opens onto the dining room. So we'll make that part of the kitchen too.

This is what we plan:
I plan to update every week, showing progress (and perhaps highlight creative meals from "Maison Garage"... )

Week 1: July 16-22 (D)

Our goal this week was to get plumbing run to the garage for a utility sink, and demo the odd bathroom that opened on to the dining room. This weekend, we vacated the construction zone, moving our furniture into the garage, and setting up makeshift cooking facilities.

Well, the bathroom is demolished, and we found buried junction boxes, which Will wanted to share. (substandard engineering/construction really gets him!) And got water to the garage.

Yard's a mess, but we'll fix that in phase two of the yard project. (I'm just hoping we don't break a leg, navigating the dirt piles to get to the "kitchen" at night! - but they're supposed to get filled in next week)

Welcome to Maison Garage! Also known as "Hell's Kitchen" on hot days - the garage gets quite warm. But certainly better than the cooking facilities that many of our ancestors had.

Refrigeration is a major plus - and I've been prepping for this for 3 months! We have about 50 meals worth of prepped and partially prepped food in the freezer. (I could easily become a hoarder.) Not enough to eat entirely from the freezer, but who would want to? But with barbeque, microwave, and toaster oven, this will make it easier to get dinner on the table.

Note the sink, at left, purchased from a used restaurant supply house. If you're thinking that Will is over-engineering again, you're right. But the used sink wasn't much more than a new plastic sink from Home Depot, and will be much more durable and cleanable, so I'm grateful for it.

And behind the fridge, you can see the piled, blanketted, and tarped furniture.

We also have makeshift dining accomodations in Will's workshop. And Saturday, after moving furniture and cooking equipment all day, we celebrated with grilled steak and sauteed mushrooms for dinner!
Next week? Major demolition - most of the living areas and our bedroom upstairs will be sealed off, and we'll be confined to the old front rooms of the house (and Maison Garage, of course). More later!

Week 2 (D)

Thursday, 7/26/12: There's no turning back now. The remains of our kitchen is piled in the backyard. And there are holes in the floor, and skeletal walls inside. The contractor recycles usable appliance, fixtures, and materials to Habitat for Humanity - I think that's very cool.

7/25-29: Lots of demolition. Not much to see. Will drilled his finger this weekend (ouch!) and I came home with groceries to find a trail of blood drips through the house. Since he hollered "hello" and I could hear him moving, I wasn't worried - but it is a little weird.

Cooking in "Maison Garage" is a challenge - we can only use one appliance at a time, since they're all sharing the same extension cord. (Will points out that we could use 2, but only by unplugging the frig!) Still, we're eating really well - tonight's dinner was Chicken Satay, Garlicky Green Beans, and Thai Cabbage Slaw (color's a bit off due to flash):

August 3rd - I have to say that "Maison Garage" is conveniently close to the vegetable garden. Last night, while Will made salad, I checked on the cucumbers. I've decided that one fresh cucumber is a treat; a dozen can become pickles; and any more than a dozen should be called a "tyranny". That's what I have: a tyranny of cucumbers. We've been taking baskets of cucs and tomatoes into work and around to the neighbors. I guess 20 tomato plants and 10 cucumber plants was just a little too much for the two of us?

Meanwhile the work to pour the new footings that will allow us to remove the load-bearing wall has been proceeding, click here for more details.

8/04/12 - Mayhem at 6 Silver Spring! (D)

OK - Got your attention, right? Well, it was crazy here yesterday. The contractor, with his plumber and demolition guys were working. And the landscaper came to remove the terraces the city deems offending, regrade, and replant (see Will's sidebar to the yard remodel project: The City Steps In). And the floor guy brought samples for final approval, and to check measurements. Will was in his element - I've never seen him in this situation, and he's REALLY good. Cheerful, positive, directing activity, cycling between one contractor and the next.

I was trying to stay clear, working in my sewing room, when I hear running water... a LOT of it. I go to investigate, but can't get to the source because to the plastic separating the construction zone for the living quarters. But I see Will racing to the water shutoff in front. Yup, they cut through a water pipe. There's a gusher in the kitchen! So now, in addition to a lot of dirt in the construction zone, we have water and mud. It's hard to tell, but the beams under the worklight are all wet. It's an adventure!

08/05/12 - Just a postscript: We are still eating really well. Grilled albacore, stir-fried garden veggies (squash, beans, corn, onion, red bell peppers - a favorite combo for years) and Will's incredible salad. Yum!

8/6 - 8/11 Progress! (W)

Monday the lumber arrives:

 

Then Tuesday the framer arrives for work. The mission:

  1. Build temporary shoring (basically a wall in the middle of the old kitchen)
  2. Remove the old exterior load-bearing wall.
  3. Cut all of the upstairs floor joists so that the beam can slip between their ends
  4. Raise the beam into place
  5. Install the 4x4s that support it
  6. Install Joist hangers to hand the upstairs floor joists on the new beam.
  7. Remove the temporary wall

Amazingly, this was accomplisted in a single day. Plus framing out the new bit of wall that separates the kitchen from the entry hall and dining room.

 

Rest of the week was very quiet no activity at all on Thursday and Friday. Then on Saturday the plumbers arrive again to re-connect the other 1/2 of the upstairs bathroom (the shower and the sinks). Besides running the water and drain lines up the walls as you can see in the picture, a great deal of work was done in the very confined space under the floor to tie this new plumbing into the mains under there. As well as correct some bits that were improperly done when the addition as built in 1990.

Will's task while the pumbers are crawling about under the house is to apply acoustic wrapping to the new drain pipes to hopefully minimized the running water sounds from someone using the upstairs bathroom to those in the kitchen and family room.

Diane spent the weekend in Sacramento visiting her father, so no fancy eats this weekend, just takeout from the local Mexican place.

Tuesday 8/14: The electricians arrive for the first time. (W)

And they take on the task of replacing the main electrical panel. Interestingly they do this job "hot" that is never asking Edison to shut off the power.

As a result the power outages were minimal. Two roughly 30-minute power outages for the critical bits the circuits feeding the refrigerator and the freezer. The reasons for replacing the panel were two: it was about 25 years old and in only fair physical condition and it really didn't have enough breaker space for our plans.

Before

After

Notice on the before picture, the use of flexible metal conduit (red arrow). Flex is not water tight and is not allowed to be use in a wet location such as on the outside of a house, and yet someone did! The new installation is far from finished, inside the crawl space on the other side of the neat row of LB Fittings is still a mess that will have to be sorted out. Also the ground connection is connected but not yet properly fastened down (that's the small cable you see hanging loosely).

 

8/14-19: More progress! (D)

I like framing better than demolition and plumbing- it seems like there's more going on.

On Tuesday, as described by Will above, they added new electrical service. Will stayed home to see that everything was done to his satisfaction - and thought he'd get a few repairs done. Unfortunately, the repair he chose to do was to rewire a ceiling fan... by himself... on top of a ladder. What was he thinking? Strained his back, and spent the next couple days lying down, grumbling and grousing. And I had a rotten cold, which he caught, making him (and me) even more miserable. And it's hot, and with the house sealed off for construction, there's not much cross-ventilation. So we're a grouchy, miserable pair. But despite that, much was accomplished - though not by us!

New ceiling beams and headers let the framers open the kitchen to the family room. We'll open a bit more to the living room, too.

If the plumber's here, it must be Saturday. (3rd Saturday in a row) Finished rerouting the upstairs bath, and roughed in lines for the new kitchen. The pantry area still looks pretty awful, but we can get a feel for the space.
And they began to close in the "atrium" that goes up through the bedroom. Also removed the glass block walls and framed in solid walls, giving the master bath a bit more privacy.
Maison Garage is open again! Tonight's dinner is grilled salmon, homemade bread (yes! Homemade!) with toasted parmesan, and Will's wonderful salad.
A final postscript: We picked tomatoes (again). These are plum tomatoes, perfect for canning. But I have no kitchen. Will took them round to the neighbors, but we still have bunches ready to take to work tomorrow.

8/20-26: (w)

Not nearly so much visible progress this week. Little details being worked out. Started closing a few things like the the upstairs bathroom wall is now sheet-rocked (with opening for a large medicine cabinet).

 

 

 

Also Opened up two large holes in the upstairs closet floor to allow access to the space over the entry ceiling. In this space we have to run new heater ducts, the exhaust duct for the new cooktop hood as well as some wiring.

No plumbers this Saturday. Instead we get the HVAC guys. We're moving the furnace from the front hall (where is sounds like a small jet engine when running) to the attic which will hopefully significantly reduce it's noise. The work to move the unit and re-run all of the ductwork was accomplished except for two vents in the family room and a new vent being added to the master bedroom.

Attic now looks a bit like something out of a science fiction movie:

 

 

 

 

Then there was an "oops" this weekend as well... this time one of the workers manages to put his foot through the hall ceiling.

9/1 - (D)

It goes on, and on, and on... Contractor and cabinet guy were here Monday night. Contractor promised that wiring would be finished this week, ready for inspection. And sheetrock immediately after... Hah! Electricians worked two days, and vanished. Electical isn't done. No inspections, no sheet rock. I think there would be an excellent market for a contractor that could actually stay on schedule...

You can see the wiring hanging from the ceiling, below:

And this is notable for what's NOT there - they did roll up a dumpster on Friday, and start to haul off the debris and dirt.

Maison Garage continues to turn out delicious meals. Tonight was grilled shrimp with pasta salad. (I cooked and froze all the pasta in the kitchen as we were packing up, otherwise, this wouldn't be possible.)

 

And al fresco dining is certainly pleasurable.

Continue with Part 2