| July 27-August 3We get started on new structure to allow us to open up what was originally the exterior load-bearing wall of the house. Here's what the Engineer drew: | ||||||||
|  |  | |||||||
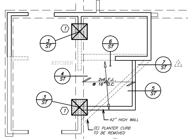
| What this means is that we have to dig two big holes in the middle of the house where those two neat gray rectangles are in the drawing on the left. (After cutting holes in the floor to get access to the crawlspace.) The holes go under the existing foundation. Then two 3/4" holes need to be drilled through the old foundation at each location for the threaded rods called for in the drawing on the left. | ||||||||
|  | 
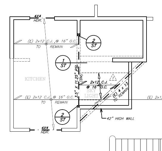
 This plan shows what happens above the floor. A new 3.5" x 11.25" PSL Beam is to be installed over the opening. PSL means "Parallel Strand Lumber" basically the beam is lots of thin wood bits all glued together. Supporting each end of the beam will be a 4x4 post going down to those new footing pads as called out above. 
 | |||||||
| 
 
 
 The existing ceiling joists (and the new joists filling the hole in 
          floor above) |  | |||||||
|  | ||||||||
| 
 
 Each end of the beam will be connected to the 4x4 with a metal connector. | ||||||||
| 
 So the first step is to cut big holes in the floor. | ||||||||
|  | 
 And we have a problem. As you can see in the picture where the 4x4 is supposed to go is directly a gap in the upper part of the footing. This once was a crawl space vent (before the 1990 remodel to the house) and now is serving as a passage for utilities, all of which we need to keep! After briefly debating ways to block the gap and carry the load down to that massive new foundation pad, we determine that he easiest solution is to move the post as shown in the picture and make the beam 1' longer. So this picture was sent off to the engineer who was able to verify that we could make the beam longer with the same size timber. | |||||||
| 
 So work proceeds to dig holes in the dirt. | 
 And to then fill them full of concrete: | |||||||
|  |  | |||||||